Les infos Essentielles
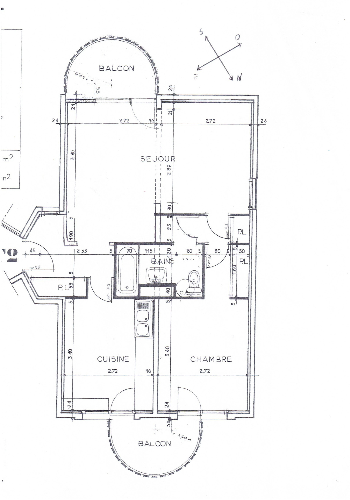
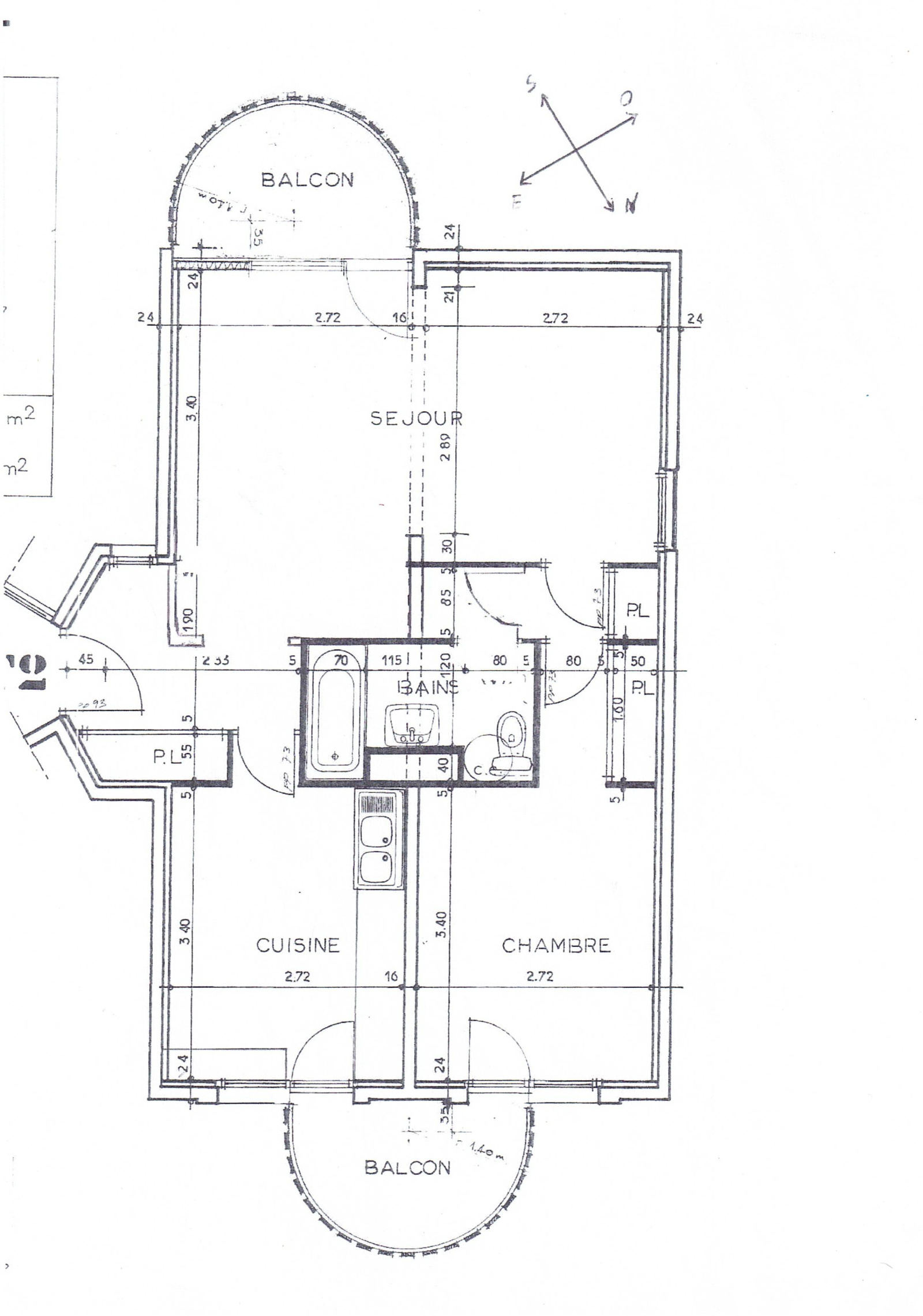
À vendre à Cran-Gevrier, dans un quartier résidentiel calme et verdoyant, appartement de type 2 de 53 m², situé au 2ème étage avec ascenseur.
Idéal pour un primo-accédant ou un investissement locatif, ce bien offre un cadre de vie serein, tout en restant proche de toutes les commodités essentielles : commerces de proximité, lignes de bus facilement accessibles et axes routiers rapidement atteignables.
L’appartement se compose d’une entrée avec rangements, d’un salon avec un coin repas convivial et accédant sur un balcon, ainsi que d’une cuisine indépendante aménagée.
La partie nuit, comprend une chambre avec placard, une salle de bains avec WC.
L’immeuble, calme et bien fréquenté, offre un véritable sentiment de tranquillité, tout en restant connecté aux services de la ville.
L’appartement bénéficie de double vitrage, de volets électriques et d’un chauffe-eau électrique récent.
La copropriété dispose d’un parking de copropriété.
Consommation énergétique E : 317 kWh/m²
Emission de gaz à effet de serre B: 4 CO2/m²/an
CHARGES COPROPRIETE : 1 853 € dont chauffage collectif
TAXE FONCIERE : 872 €
PRIX : 221 000 € (honoraires charges acquéreur compris 11 000 €)
Les infos Energetiques
La base légale du traitement repose sur l’intérêt légitime de l'Agence / du Réseau.
Elles sont conservées jusqu'à demande de suppression et sont destinées à l'Agence / au Réseau.
Conformément à la loi « informatique et libertés », vous pouvez exercer votre droit d'accès aux données vous concernant et les faire rectifier en contactant l'Agence / le Réseau.
Si vous estimez, après avoir contacté l'Agence / le Réseau, que vos droits « Informatique et Libertés » ne sont pas respectés, vous pouvez adresser une réclamation à la CNIL.
Nous vous informons de l’existence de la liste d'opposition au démarchage téléphonique « Bloctel », sur laquelle vous pouvez vous inscrire ici : https://www.bloctel.gouv.fr
Dans le cadre de la protection des Données personnelles, nous vous invitons à ne pas inscrire de Données sensibles dans le champ de saisie libre
Ce site est protégé par reCAPTCHA, les Politiques de Confidentialité et les Conditions d'Utilisation de Google s'appliquent.
